Ärihooned Lennuradari teel
Lennuradari tänaval, Rae vallas, paiknev kaasaegne ärihoonete kompleks asub ideaalses asukohas, kus ettevõtetel on tagatud mugav ja kiire ligipääs nii Tallinna kesklinna kui ka ümbritsevatesse piirkondadesse. Ärikompleks asub vaid lühikese vahemaa kaugusel Tallinna Lennujaamast ja Suur-Sõjamäe teest, tagades suurepärase ühenduse peamiste liiklussõlmedega.
Lähedus Tallinna ringteele ja sadamatele, nagu Muuga, Vanasadam ja Paljassaare, loob ideaalse asukoha ettevõtetele, kelle jaoks on oluline tõhus logistika ja kiire ühendus Eesti ja rahvusvaheliste sihtkohtadega.
650 m
Bussipeatus
8,5 km
Tallinna Lennujaam
2 km
Tallinna ringtee
8 km
Peterburi tee
9 km
Tallinn-Tartu mnt
Stock-office pinnad
Ärihoonete kompleksist leiab stock-office pinnad ettevõtjatele, kes ei vaja suurt laopinda ja otsivad optimaalse suurusega ruume, kus saab pidada nii kontorit kui väikest ladu, vajadusel ka esinduspoodi ja väiketootmist.
Ruumid on kõrgete lagedega ja suurusega kuni 60 kuni 140 m². Igal stock-office pinnal tõstukse-jalgväravaga sissepääs.


Laopinnad
Äripark laieneb veelgi
Lennuradari äripark laieneb jõudsalt, et pakkuda veel rohkematele ettevõtetele kaasaegseid stock-office ja laopindu. Hetkel on kompleksis valmis kolm ärihoonet kogupindalaga 2500 m². 2025. aastal lisandub kompleksi kaks täiendavat ärihoonet, 2026. aastal rajatakse veel kaks hoonet – kokku lisandub 4026 m² äripinda.
Meie eesmärk on luua kaasaegsed ärihooned, mis ei paku ainult sobivaid ja funktsionaalseid ruume, vaid loovad ka mugava ja tõhusa töökeskkonna. Lihtne ligipääs ja läbimõeldud lahendused teevad Lennuradari äripargist sobiva valiku erinevate vajadustega ettevõtetele.

Hinnad ja plaanid
Äripinna üürniku kasutuses on ka üks parkimiskoht aiaga piiritletud hoovis.
Äripinna üürile lisanduvad käibemaks ja kõrvalkulud.
Tule vabade äripindadega tutvuma – kui sõlmid lepingu enne novembri lõppu, kehtib sulle aasta lõpuni soodsam üürihind (kuvatud hindade tabelis).
Võta ühendust:

| Ruum | Pindala m² | Korruseid | Hind € |
|---|---|---|---|
| 1 | 59,7 | 2 | Üüritud |
| 2 | 73,2 | 2 | Üüritud |
| 3 | 73,2 | 2 | Üüritud |
| 4 | 73,2 | 2 | Üüritud |
| 5 | 73,2 | 2 | Üüritud |
| 6 | 73,2 | 2 | Üüritud |
| 7 | 73,2 | 2 | Üüritud |
| Ruum | Pindala m² | Korruseid | Hind € |
|---|---|---|---|
| 8 | 36,4 | 1 | Üüritud |
| 9 | 45,3 | 1 | Üüritud |
| 10 | 45,3 | 1 | Üüritud |
| 11 | 45,3 | 1 | Üüritud |
| 12 | 45,3 | 1 | Üüritud |
| 13 | 45,3 | 1 | Üüritud |
| 14 | 36,4 | 1 | Üüritud |

| Ruum | Pindala m² | Korruseid | Hind € |
|---|---|---|---|
| 15 | 76,5 | 1 | Üüritud |
| 16 | 74,9 | 2 | Üüritud |
| 17 | 74,9 | 2 | Üüritud |
| 18 | 74,9 | 2 | Üüritud |
| 19 | 74,9 | 2 | Üüritud |
| 20 | 74,9 | 2 | 595 |
| 21/22 | 119,9 | 2 | Üüritud |
| Ruum | Pindala m² | Korruseid | Hind € |
|---|---|---|---|
| 22 | 47,1 | 1 | Üüritud |
| 23 | 45,9 | 1 | Üüritud |
| 24 | 45,9 | 1 | Üüritud |
| 25 | 45,9 | 1 | Üüritud |
| 26 | 45,9 | 1 | Üüritud |
| 27 | 45,9 | 1 | Üüritud |
| 28 | 44,7 | 1 | Üüritud |

| Ruum | Pindala m² | Korruseid | Hind € |
|---|---|---|---|
| 29 | 62 | 1 | 550 |
| 30 | 77,8 | 2 | Üüritud |
| 31 | 77,8 | 2 | Üüritud |
| 32 | 77,8 | 2 | Üüritud |
| 33 | 77,8 | 2 | 595 |
| 34 | 77,8 | 2 | Üüritud |
| 35 | 75,8 | 2 | Üüritud |
| Ruum | Pindala m² | Korruseid | Hind € |
|---|---|---|---|
| 36 | 38,7 | 1 | Üüritud |
| 37 | 49,2 | 1 | Üüritud |
| 38 | 49,2 | 1 | Üüritud |
| 39 | 49,2 | 1 | Üüritud |
| 40 | 49,2 | 1 | Üüritud |
| 41 | 49,2 | 1 | Üüritud |
| 42 | 48 | 1 | Üüritud |
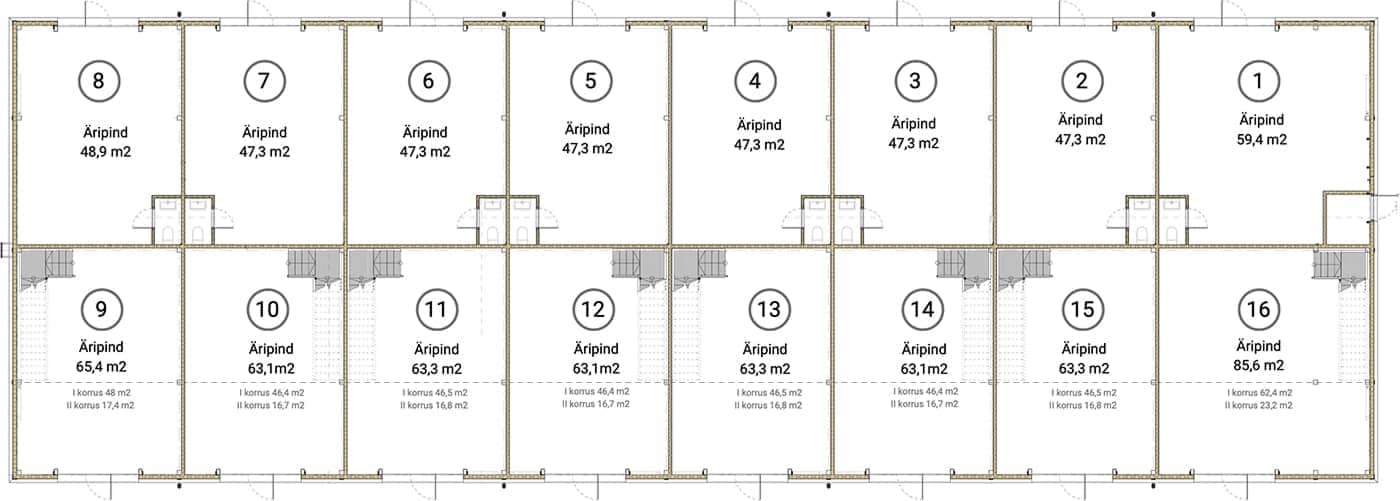
Pinnad valmivad 2025 aasta detsembris

| Ruum | Pindala m² | Korruseid | Hind € |
|---|---|---|---|
| 1 | 53,8 | 1 | 480€ |
| 2 | 47,6 | 1 | 425€ |
| 3 | 47,6 | 1 | 425€ |
| 4 | 47,6 | 1 | 425€ |
| 5 | 47,6 | 1 | 425€ |
| 6 | 47,6 | 1 | 425€ |
| 7 | 47,6 | 1 | 425€ |
| 8 | 49 | 1 | 425€ |
| Ruum | Pindala m² | Korruseid | Hind € |
|---|---|---|---|
| 9 | 77,3 | 1 | 650€ |
| 10 | 75,3 | 1 | 650€ |
| 11 | 75,3 | 1 | 650€ |
| 12 | 75,3 | 1 | 650€ |
| 13 | 75,3 | 1 | 650€ |
| 14 | 75,3 | 1 | 650€ |
| 15 | 75,3 | 1 | 650€ |
| 16 | 97,6 | 1 | Küsi hinda |
Pinnad valmivad 2025 aasta detsembris

| Ruum | Pindala m² | Korruseid | Hind € |
|---|---|---|---|
| 17 | 59,2 | 1 | 535€ |
| 18 | 47,6 | 1 | 425€ |
| 19 | 47,6 | 1 | 425€ |
| 20 | 47,6 | 1 | 425€ |
| 21 | 47,6 | 1 | 425€ |
| 22 | 47,6 | 1 | 425€ |
| 23 | 47,6 | 1 | 425€ |
| 24 | 49 | 1 | 425€ |
| Ruum | Pindala m² | Korruseid | Hind € |
|---|---|---|---|
| 25 | 77,3 | 1 | 650€ |
| 26 | 75,3 | 1 | 650€ |
| 27 | 75,3 | 1 | 650€ |
| 28 | 75,3 | 1 | 650€ |
| 29 | 75,3 | 1 | 650€ |
| 30 | 75,3 | 1 | 650€ |
| 31 | 75,3 | 1 | 650€ |
| 32 | 97,6 | 1 | Küsi hinda |
Üüritingimused
Äripinna üürnikuga sõlmitakse leping miinimum kehtivusega viis aastat. Lepingut on võimalik lõpetada 3-kuulise etteteatamisega.
Lepingu sõlmimisel tasub üürnik tagatisraha ja esimese kuu üüri.













